Бани готовые
Готовая каркасная баня DIPLOMAT
Размер 6х2,5 м
Площадь 15 м2
Количество отделений 3
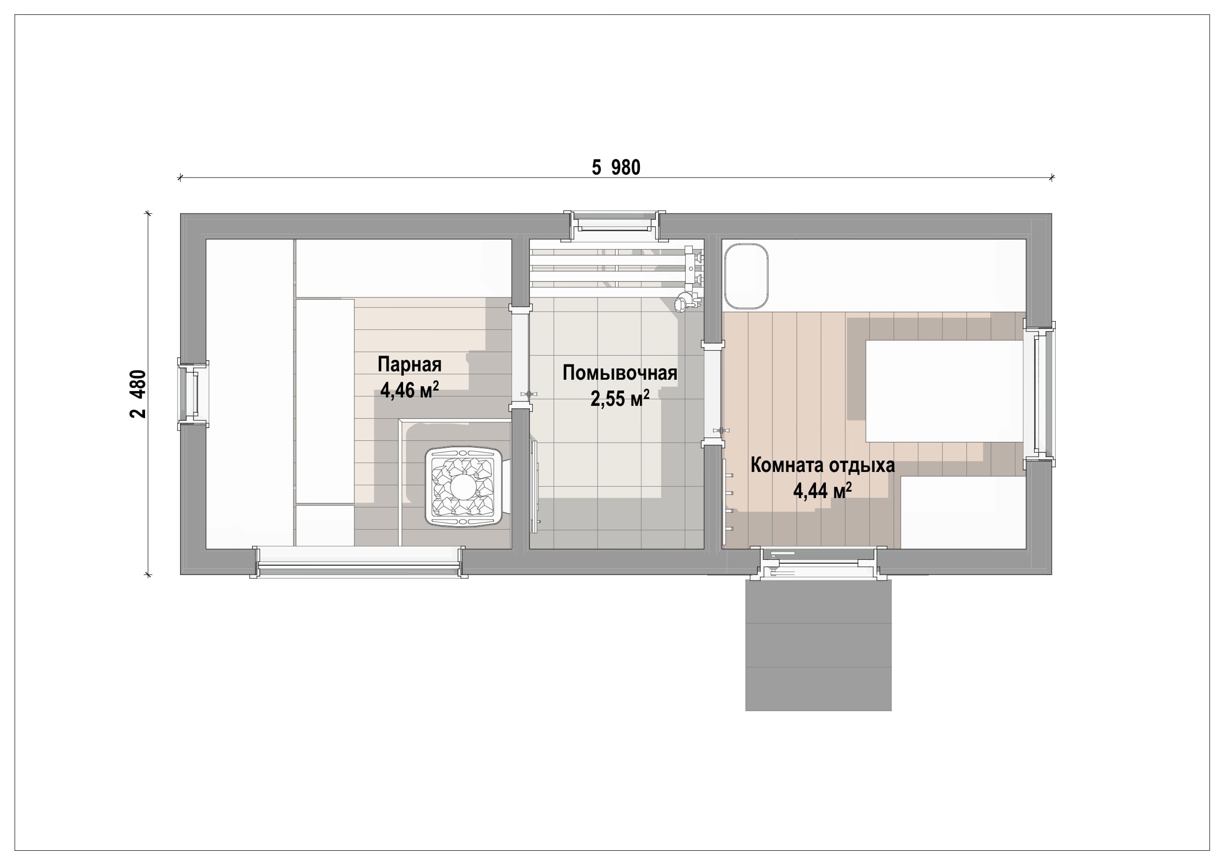
Готовая каркасная баня LUNA
Размер 6,7х3,4 м
Площадь 23.5 м2
Количество отделений 3
Готовая каркасная баня SLIM
Размер 6х2,5 м
Площадь 15 м2
Количество отделений 3
ОПЫТ, ПОДТВЕРЖДЕННЫЙ РЕАЛИЗАЦИЕЙ
От типовых моделей до индивидуальных решений с повышенными требованиями к конструкции.
От типовых моделей до индивидуальных решений с повышенными требованиями к конструкции.
Модульный банный комплекс с интегрированной купелью. Терраса с прозрачной крышей и открытой стропильной системой. Парная из ольхи с парящими полками. Электрическая печь Sangens с удаленным управлением через Wi-Fi. Отделка комнаты отдыха разноширокой влагостойкой фанерой. Контурная подсветка потолка и трековое освещение.
Баня для коммерческого использования на базе отдыха в Карелии. В бане два выхода. Один через прихожую, второй на террасу из комнаты отдыха. В будущем впритык к террасе планируется установка купели. В парной два панорамных окна, отделка термоосиной и чугунная печь с экономайзером. Топка выведена на улицу.
БАНИ В ДЕТАЛЯХ
Банный комплекс с купелью
Банный комплекс с встроенной купелью
Модульная баня DIPLOMAT-TERRA
Смотреть все видео
Модульная баня LUNA
Каркасная баня Ковчег
Модульная баня по инд.проекту АР-003
Готовая баня Diplomat PRO MAX
Готовая баня Diplomat
С ПЕРВОГО ДНЯ - ПОЛНАЯ ГОТОВНОСТЬ К РАБОТЕ
Фундамент
Планировка
Сроки и сезонность
С ПЕРВОГО ДНЯ - ПОЛНАЯ ГОТОВНОСТЬ К РАБОТЕ
Фундамент
Планировка
Сроки и сезонность
ТЕХНОЛОГИИ, ПРОВЕРЕННЫЕ ВРЕМЕНЕМ

Усиленная стропильная система с расчётом снеговых нагрузок для северных регионов. Используются стропила 150×50 мм вместо типовых решений.






Усиленная стропильная система с расчётом снеговых нагрузок для северных регионов. Используются стропила 150×50 мм вместо типовых решений.





ПРИЗНАНИЕ ПРОФЕССИОНАЛЬНОГО СООБЩЕСТВА

Г.ПЕТЕРГОФ, РОПШИНСКОЕ Ш.8Е
Оцените материалы и инженерные решения

Проверите влажность древесины на месте

Обсудите проект с главным инженером

Увидите процесс сборки на разных стадиях

Оцените материалы и инженерные решения

Проверите влажность древесины на месте

Обсудите проект с главным инженером

Увидите процесс сборки на разных стадиях

Посещение производства — по предварительной записи
ПОЛЕЗНЫЕ МАТЕРИАЛЫ
Работаем с 2013 г. и продали более 1000 бань
Строим от бань-бочек до домов с сауной
Знаем о банях все и даже чуть больше
ПРОЗРАЧНАЯ СХЕМА РАБОТЫ
Длина
Ширина
Дополнительно
>1000 ДОВОЛЬНЫХ КЛИЕНТОВ

25 августа 2025 года

«…Баня выглядит потрясающе: очень красивая, яркая, современная. Как космический корабль! Мне все очень нравится. Все как я хотел .…»

5 июня 2024 года

«…Привезли, бережно, как ниточку в душко иголочки, поставили нашу баню среди всех наших деревьев. Для нас было очень важно поставить баню и сохранить всю нашу растительность вокруг.…»

23 октября 2024 года

«…С самого начала мы были впечатлены вниманием и индивидуальным подходом. Мы приехали на производство, нам все показали и рассказали, выслушали наши пожелания и запросы и тут же предложили самый комфортный и подходящий нам вариант по планировке.…»

Компания Банимастер – это ведущий производитель готовых бань в Санкт-Петербурге и Ленинградской области. Мы специализируемся на проектировании и строительстве готовых бань под ключ с доставкой, предлагая широкий ассортимент моделей на любой вкус и бюджет. Наш многолетний опыт и использование современных технологий позволяют нам создавать качественные, долговечные и эстетически привлекательные бани, которые будут радовать вас долгие годы. Мы гордимся тем, что предлагаем готовые бани от производителя по конкурентным ценам, гарантируя высокое качество каждого изделия.
Мы предлагаем удобное решение для тех, кто мечтает о собственной бане, но не готов тратить месяцы на строительство. Строительство готовой бани от Банимастер – это максимально быстрый и простой процесс. Вы выбираете понравившийся проект, заключаете договор, и уже через короткое время мы доставляем и устанавливаем вашу готовую баню прямо на участок. Вам остается только наслаждаться целебным паром! Все готовые бани под ключ комплектуются всем необходимым оборудованием, от печи до полок, что позволяет вам сразу же приступить к эксплуатации. Мы осуществляем доставку и установку готовых бань в Санкт-Петербурге и по всей Ленинградской области.
Купить готовую баню в СПб и в Лен. Области – это просто! Узнайте цены на готовые бани в Санкт-Петербурге купить цена и подберите идеальный вариант для вашего участка. Свяжитесь с нашими менеджерами прямо сейчас, чтобы получить консультацию и оформить заказ.
РЕКВИЗИТЫ
ООО «Регион-Фасад»
ИНН: 7802594633
ОГРН: 1167847374089
АДРЕС
© Банимастер, 2013-2026