Каркасные бани в СПб и ЛО от производителя
Каркасные бани под ключ
Гарантия 12 месяцев
Адрес: г.Санкт-Петербург,
Петергоф, Ропшинское ш., 8Е
banimaster78@yandex.ru
Преимущества
Комплектация
Доп.опции
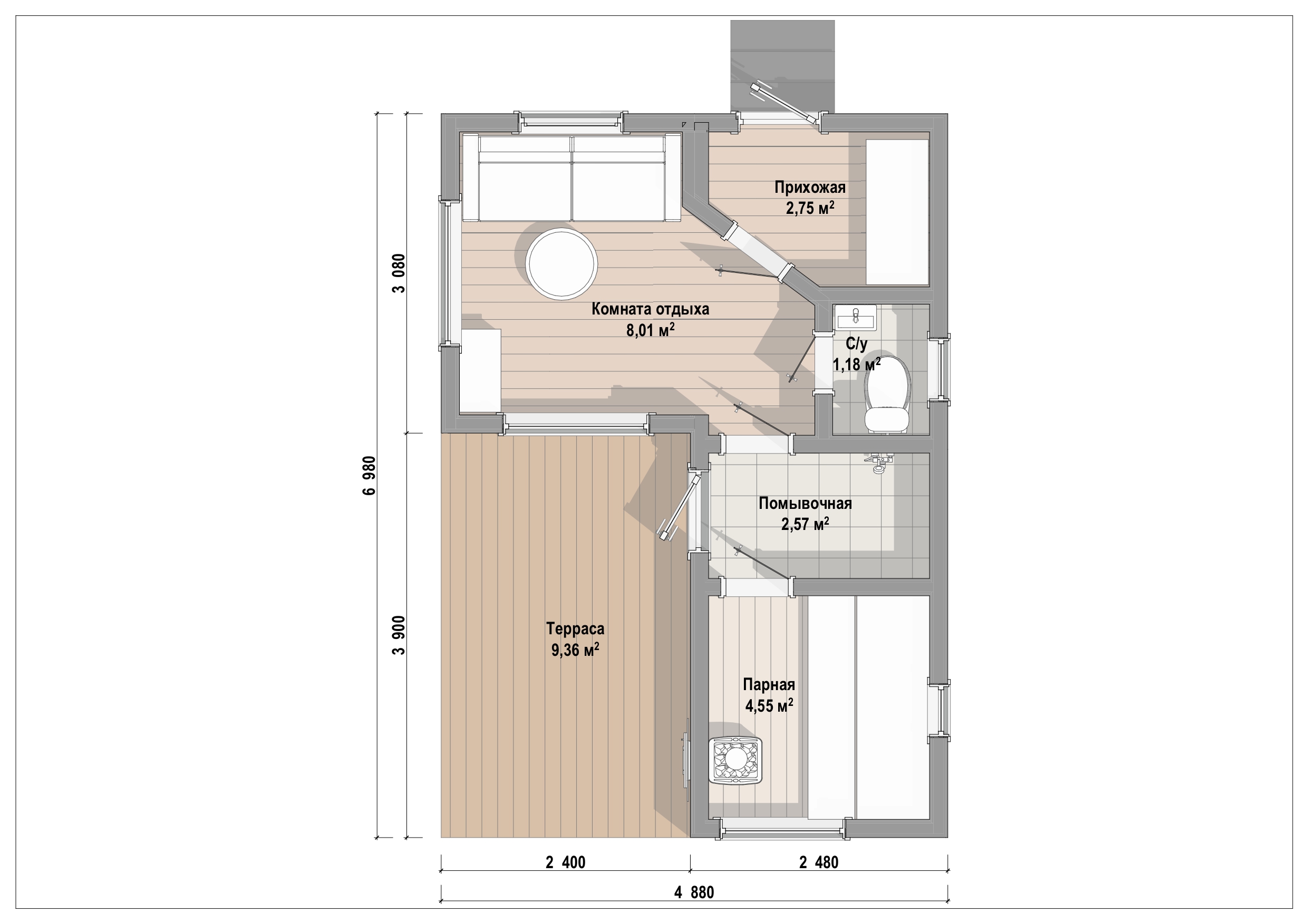
Teriberka — компактная и современная баня с продуманной планировкой: прихожая, парная, помывочная, санузел, комната отдыха и открытая терраса для отдыха на свежем воздухе с отдельным выходом из помывочной.
Баня собирается на производстве и доставляется на участок в готовых модулях, что обеспечивает высокое качество и быстрый монтаж без долгой стройки.
Планировку можно изменить под ваши задачи — адаптировать размеры помещений и функционал.
Практичное, стильное и удобное решение для комфортного отдыха круглый год.
Цена на сайте указана за базовую комплектацию. Базовая комплектация включает:
КАРКАС И ТЕПЛОИЗОЛЯЦИЯ
Силовой каркас: калиброванная доска хвойных пород 50х100, 50х150 мм. Обработка всего силового каркаса препаратом «ХМ-11»: водорастворимый, 2-х компонентный, невымываемый антисептик, увеличивает срок службы до 50 лет.
Теплоизоляция: минеральная вата. Стены 100 мм, пол и потолок 150 мм (пол и потолок100мм для модели Diplomat). Утепление пола во влажных зонах (парная, помывочная) - экструдированный пенополистирол 100 мм. Пароизоляционные/ветро-влагозащитные пленки рулонного типа с проклеиванием швов. Наружная супердиффузионная трехслойная паропроницаемая мембрана НАНОИЗОЛ «SDProfessional». Пароизоляция парной: фольга на крафтбумаге.
ОТДЕЛКА СНАРУЖИ
Стены: имитация бруса вертикально/горизонтально с предварительной трёхсторонней покраской составом RENOWOOD. Монтаж через обрешетку с формированием вентзазора. Цвет по согласованию. Отделка окон и дверей.
Крыша: профнастил кровельный МП-20 ИЛИ наплавляемая кровля ЭКП серый сланец с крупнозернистой посыпкой. Торцевые планки, капельник
Дверь входная: одностворчатая размером 0,8х2,0м (0,8х1,9м для модели Diplomat) ПВХ с многозапорным замком и усиленными наружными петлями, однокамерный стеклопакет, белый профиль, тонировка стеклопакета зеркальной пленкой.
Окна: в парной форточка для проветривания в деревянном профиле хвоя, остальные помещения - окна до 1кв.м (из расчета 1 шт на 10 м2 площади) в белом профиле ПВХ, однокамерный стеклопакет, прозрачное стекло без тонировки.
ОТДЕЛКА внутри
Парная: осиновая вагонка класса "А", безсучковая 16 мм через обрешетку с формированием вентзазора. Пол: шпунтованная доска хвойных пород толщиной 28мм (без слива). Полки двухуровневые 60 и 40 см с прямой укладкой из осины экстра класса, без спинки, без зашивки между полками.
Помывочная: вагонка хвойных пород класса "АВ" через обрешетку с формированием вентзазора. Пол в душевой зоне (до 1 кв.м.): плитка (ЦСП в два слоя с формированием плинтусной зоны, гидроизоляция, сливной трап 100х100 мм, плитка цвет коричневый). Пол в остальной зоне: шпунтованная доска хвойных пород толщиной 28мм (без слива).
Комната отдыха и другие помещения: вагонка хвойных пород класса "АВ" через обрешетку с формированием вентзазора. Пол: шпунтованная доска хвойных пород толщиной 28мм.
Обработка: полная внутренняя обработка бани с выделением пагонажа: в парной бесцветным составом, в остальных помещениях колерованным составом в выбранный Заказчиком цвет. (без внутренней обработки для модели Diplomat)
Двери межкомнатные: стеклянные матовые белые.
печь
Печной комплект: банная печь + подиум и дымоход в комплекте: сэндвич-труба, шибер, фланец, проходка кровли Master-flash, оголовок-дефлектор. Термоизоляции горючих поверхностей: Плиты негорючей ваты CONLIT, огнеупорное иглопробивное теплоизоляционное одеяло, Фиброцементные плиты со стороны топки, термокамень «АНТИОГОНЬ» со стороны печи на высоту 1м
Модель печи: чугунная печь с выносной топкой Пегас Легион 22 панорамная дверь. (чугунная печь с выносной топкой Пегас Легион 16 стекло дверь для модели Diplomat)
коммуникации
Электрика: монтаж скрытым способом, провод ВВГНГ, РКГМ (сечение согласно расчетной нагрузке), щит с 3 автоматами (1 шт общий, 1 шт на светильники, 1 шт на розетки): розетка двойная 4 шт, выключатель двухклавишный 2 шт, провод РКГМ в парной , светильник банный 2 шт с абажуром в парной над полками, светильники в остальных помещениях 4 шт (всего 12 точек). (6 точек для модели Diplomat)
Сантехника: в качестве дополнительных опций (бойлер 50 л, смеситель, душевая система, раковина, унитаз и тд.)
Вентиляция: тарельчатые клапаны
основное
Утепление СТЕН 150 мм по наружному контуру или теплоизоляционная ветрозащитная плита БЕТЕРМО 20 мм по наружному контуру
Дополнительные внутренние помещения с дверью, в том числе хозблоки
Сетка от грызунов
Терраса: замена покрытия на террасную доску 36 мм, ДПК, лиственницу
Водосточная система по крыше бани и террасы
Мебель на террасу и в помещениях: лавки, дровники, шкафы, стеллажи и т.п.
Ступени приставные
Зашивка цоколя деревянными рейками
Панорамные окна различных размеров в том числе в парной
Ламинация профилей окон и дверей
Тонировка стеклопакетов зеркальной пленкой
ОТДЕЛКА
Замена стандартного кровельного покрытия на металлочерепицу и др.
Замена фасада на завальцованную доску разной ширины, скандинавскую доску с поднятым ворсом и др.
Отделка душевой вагонкой из лиственницы, термоосины
Отделка парной кедром, ольхой, термоосиной
Отделка стен и пола керамогранитом
Теплые полы в помещениях
Отделка пола кварцвинилом
парная
Замена печи на другие модели
Замена дымохода на усиленный черный 215 мм фирма MAGMA
Установка на дымоход бака для воды, сетки-каменки, экономайзера-сетки
Вентиляция Басту
Свежее дыхание
Люксовая мебель в парной: полки (осина, термоосина, комбинированные - на выбор), спинка, зашивка верхнего полка, выдвижной приступок
Ограждение печи из термоосины
Соляные панно, панно из можжевельника
Декоративная подсветка в парной: LED-подсветка полков, спинок, панно
Облицовка стены в зоне печи натуральным камнем или керамогранитом
Электрика и сантехника
Электрика: наружные светильники, дополнительные электроточки или выводы кабелей, установка пультов управления печи, терморегуляторов, встроенных музыкальных колонок
Сантехника: обливные устройства, унитаз, раковина, душевые системы, душевые двери, ванны, душевые поддоны
Установка незамерзающего крана и штуцера-быстросъема
Наружные сантехнические и электротехнические работы









Банный комплекс с купелью под крытой террасой. Доставляли двумя готовыми модулями. В бане два входа: один основной, второй для выхода на террасу прямо из комнаты отдыха. Отделка и сантехника по выбору заказчика. Парная отделана вагонкой из ольхи. Печь Атмосфера с сеткой-каменкой.
Баня для коммерческого использования на базе отдыха в Карелии. В бане два выхода. Один через прихожую, второй на террасу из комнаты отдыха. В будущем впритык к террасе планируется установка купели. В парной два панорамных окна, отделка термоосиной и чугунная печь с экономайзером. Топка выведена на улицу.
Diplomat-Terra - баня по индивидуальному проекту размером 8х2,5 с дровником и крытой террасой. Шикарная парная с соляным панно, парящими полками и разными сценариями освещения. В комнате отдыха большое панорамное окно, через которое можно наслаждаться прекрасным садом.
Модульная баня по индивидуальному проекту. Доставлялась тремя модулями: два модуля бани и модуль хозблока с крытой террасой. Монтируется на месте за один день. В комнате отдыха одна из стен отделана реечным профилем с подсветкой, на полу кварцвинил с теплым полом. Душевая в лиственнице. Печь Атмосфера, отделка за печью талькохлоритом.
Модульная баня по индивидуальному проекту размером 7х3 с крытой террасой 7х1м. В комнате отдыха большое панорамное окно, через которое можно наслаждаться прекрасным садом. Душевая полностью в кафеле. Печь Пегас Легион с выносом топки на улицу, полки из термоосины, выдвижной нижний полок.
Каркасная баня со сборкой на участке. Второй свет и панорамные окна в комнате отдыха. Душевая в лиственнице. Печь Атмосфера с ламелями из камня змеевик, отделка за печью также змеевиком.
Модульная баня негабаритной высоты. Доставляется готовыми модулями, выносы крыши монтируются на месте. В санузел есть два входа: работая в саду, можно попасть в него с улицы, исключая проход через всю баню. Сзади расположен вход в дровник. Баня отделана осиной, в углах вставки из термоосины. Люксовые полки и светильники.
Каркасная баня House-2 по индивидуальному проекту. Полностью собиралась на участке. Баня имеет размеры 6х5,7м , Г-огразную террасу под общей кровлей и открытую террасу 6,0х6,0м. Комната отдыха с панорамными окнами 0,8х1,9м. Парная обшита кедром, в углах светильники с соляными вставками. Душевое отделение в кафеле. Во всей бане сделаны теплые полы.
Готовая баня Diplomat 6х2,5м с террасой. В парной и комнате отдыха панорамные окна 140х50см, проходное душевое отделение. В комнате отдыха расположен шкаф, где спрятан бойлер и сантехническая разводка. Также в комнате установлена встроенная мебель (рундуки и подъемный стол), полка под окном со шкафчиками.
Готовая баня Diplomat-2 6х2,5м. В парной и комнате отдыха панорамные окна 140х50см, для проветривания в комнате предусмотрено распшное окно 1,0х1,0м. Помывочное отделение с душевой системой Тропический душ. В парной сделан нижний выдвижной полок, который можно задвинуть, чтобы подойти к верхнему полку. В комнате отдыха расположен шкаф, где спрятан бойлер и сантехническая разводка.
КАРКАСНАЯ БАНЯ
ANNA
Длина, м
6
Ширина, м
3
Количество отделений
3
Площадь, м2
18
КАРКАСНАЯ БАНЯ
SCANDI №2
Длина, м
6
Ширина, м
3
Количество отделений
2
Площадь, м2
18
КАРКАСНАЯ БАНЯ
HELGA
Длина, м
6
Ширина, м
3
Количество отделений
4
Площадь, м2
18
Введите свой телефон и получите консультацию у специалиста
в течение 15 минут
Есть вопросы? Звоните!
Адрес: город Санкт-Петербург, Петергоф, Ропшинское ш., 8Е
Работаем ПН-СБ с 9-00 до 18-00
banimaster78@yandex.ru
© 2025 БАНИМАСТЕР. Все права защищены.